Bailey |
✧ about ✧ resume ✧ portfolio ✧ contact |
explore ✧ cool down ✧ ptl ✧ climate ✧ launch lab ✧ trade show |
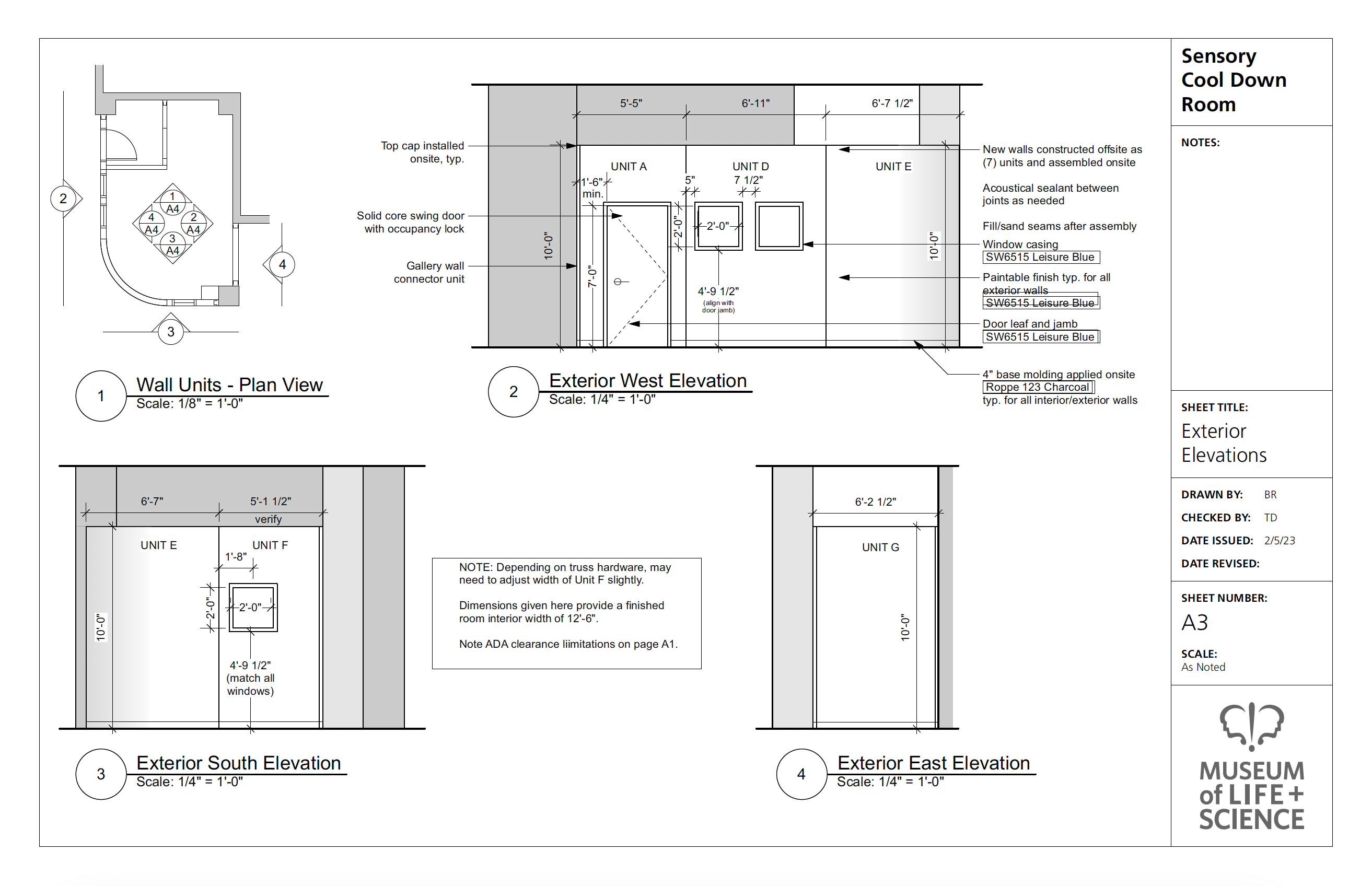
| sensory cool down room museum of life and science, 2024
|
| my team: needed a calming themed space in the museum's aerospace gallery for visitors on the autism spectrum with diverse sensory needs. my role: lead concept development, design, and installation in collaboration with neurodiverse visitors and special needs educators. produced construction drawings. wrote and designed exhibit graphics. i collaborated with the exhibits engineer to connect lights, audio, and sensory toys through a series of wall-mounted panels so visitors with different sensory needs can customize the environment to work for them.![]() ![]() ![]() |
built with and hosted by neocities